特斯拉正計畫在加州著名的 EddieWorld 打造全球最大的超級充電站。這座被稱為加州最大加油站的公路補給站,未來將新增超過 400 支 V4 超級充電座,第一階段預計於 2026 年動工。
本文主要內容
這項位於加州 Yermo 的大型站點計畫,不僅刷新單站超級充電座規模,也顯示特斯拉正加速擴展超級充電網路,並推動站點朝超大型化與能源整合發展。

加州 Yermo:400 座 V4 超級充電站
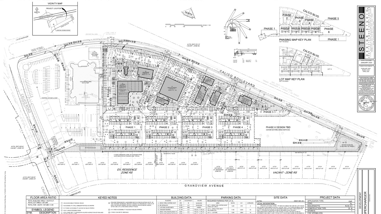
特斯拉正規劃進一步擴大超級充電站規模。根據加州 Yermo(位於 I-15 高速公路、Eddie World 2 商業開發區附近)的最新規劃文件,一座超大型超級充電站預計於 2026 年啟動第一階段建設。

名為 Eddie World 2 的計畫預計建置超過 400 支 V4 超級充電座,規模約為目前全球最大站點的兩倍以上。整體建設將分為六個階段推進,其中第一階段預計於 2026 年動工,首波規劃建設 72 支 V4 超級充電座。V4 超級充電設備理論上可支援最高約 500 kW 的單座功率,有助於縮短車輛充電時間。

加州 Lost Hills:現役最大 Tesla Oasis
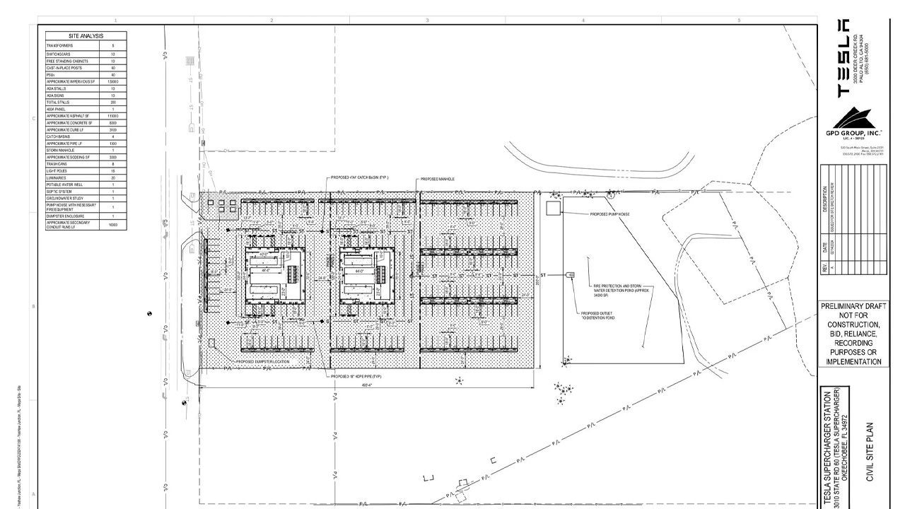
在 Yermo 站點完工之前,目前全球已正式營運的最大特斯拉超級充電站位於美國加州 Lost Hills,名為 Tesla Oasis。該站點於 2025 年 11 月全面啟用,正值當年度美國感恩節假期的交通高峰。

Tesla Oasis 共設置 168 支超級充電座,其中包含 12 個為拖車車輛設計的穿透式車位。站點同時導入大型能源系統,配置約 11 MW 的太陽能發電設施,以及總容量 39 MWh 的 Megapack 儲能系統(由 10 組 Megapack 組成)。透過太陽能與儲能結合運作,該站點可在一定程度上降低對電網的依賴,同時支援舊金山與洛杉磯之間主要交通路線的長途充電需求。
美國多地:300 座級超充網路
除了 Yermo 的大型超級充電站計畫,特斯拉在美國多地仍有多個大型站點正處於規劃或許可階段,顯示其持續擴展骨幹超級充電網路的策略。
加州 Firebaugh 站點目前已取得條件使用許可,正處於規劃階段。該站預計擴建至總計 304 支超級充電座,包含既有的 V3 超級充電設備,並新增 232 個乘用車充電位與 16 個專為 Tesla Semi 電動卡車設計的 Megacharger 充電位,使其未來可能成為重要的物流運輸節點。

佛羅里達州 Yeehaw Junction 站點則於 2024 年首次曝光規劃,預計建置超過 200 支超級充電座,並包含多個可供拖車使用的車位。截至 2026 年 3 月,該計畫仍處於審核或基礎設施配套建設等待階段,尚未公布具體動工或啟用時間。

全球對照:特斯拉大型超充站
| 地區位置 | 充電座數 | 目前狀態 | 技術重點與特色 |
|---|---|---|---|
| 加州Yermo | 400 座以上 | 規劃中 (Phase 1 預計 2026 年開工) | Eddie World 2、V4(最高約 500 kW) |
| 加州Firebaugh | 304 座 | 許可與規劃中 (尚未動工) | 包含 16 個 Semi Megacharger |
| 佛州Yeehaw Junction | 200 座以上 | 規劃審核中 (2024 年起無新進展) | 包含拖車專用位 |
| 加州Lost Hills | 168 座 | 已全面啟用 (2025.11) | V3 / V4 混合、近離網運行、12 個拖車位 |
| 加州Barstow | 120 座 | 已全面啟用 | 特斯拉早期大型樞紐指標 (現已非最大) |

未來趨勢:Megapack 能源整合
從 2026 年的發展趨勢來看,特斯拉對於超級充電網路的布局正出現明顯轉變。隨著電動車數量快速增加,單純擴充超級充電座數量已難以完全應對電力需求。透過 Megapack 儲能系統緩衝電網負載,並搭配大規模太陽能發電,逐漸成為新一代超級充電站的重要配置。

這類具備高穩定性與高車流承載能力的站點,不僅服務現有的乘用車市場,也為未來 Tesla Semi 電動卡車量產後的物流需求做準備。隨著 Yermo 等大型站點預計自 2026 年起陸續動工,全球電動車充電基礎建設也將邁入超大型超級充電站快速擴張的階段。
延伸閱讀
全台特斯拉超級充電站地圖、充電費率、停車收費、開放時間一次看
特斯拉啟用全球最大超級充電站!擁 168 樁、太陽能與儲能系統
限時三天免費充電!特斯拉全台最大 V4 超充站於台北大巨蛋正式啟用
若近期有購車規劃,可以使用 electrify.tw 的推薦連結 前往特斯拉官網訂購,或將推薦碼連結提供給銷售顧問即可獲得 NT$ 8,000 購車優惠。若您即將交付新車,不妨參考 JOWUA 周邊配件。
若覺得本站內容實用,歡迎追蹤 LINE TODAY、Google 新聞 與 Facebook 粉絲專頁,日後查找用車資訊更方便。若有任何問題或建議,歡迎加入我們的 LINE 官方帳號 聯繫。










